Ηλεκτρομηχανολογικές Άδειες


Το τεχνικό γραφείο μας αναλαμβάνει όλες τις ηλεκτρομηχανολογικές μελέτες για την έκδοση οικοδομικής αδείας για κατοικίες/πολυκατοικίες, καταστήματα, αποθήκες. Καθώς και επιμέρους μελέτες, ανάλογα με τις ανάγκες του αναδόχου ή μηχανικού.

Το τεχνικό γραφείο μας αναλαμβάνει την εκπόνηση μελέτης ενεργειακής απόδοσης κτιρίου (ΚΕΝΑΚ) και σας παρέχει αξιόπιστες συμβουλές και λύσεις, με σκοπό την ενεργειακή του θωράκιση. Με την εμπειρία μας προτείνουμε κατάλληλη θερμομόνωση και κουφώματα καθώς και τα συστήματα ψύξης και θέρμανσης του κτηρίου για καλύτερη εξοικονόμηση.

Το γραφείο μας αναλαμβάνει τον υπολογισμό θερμικών απωλειών και ψυκτικών αναγκών της κατοικίας/πολυκατοικίας/καταστήματός σας.

Εκδίδουμε μελέτες κατανομής δαπανών.

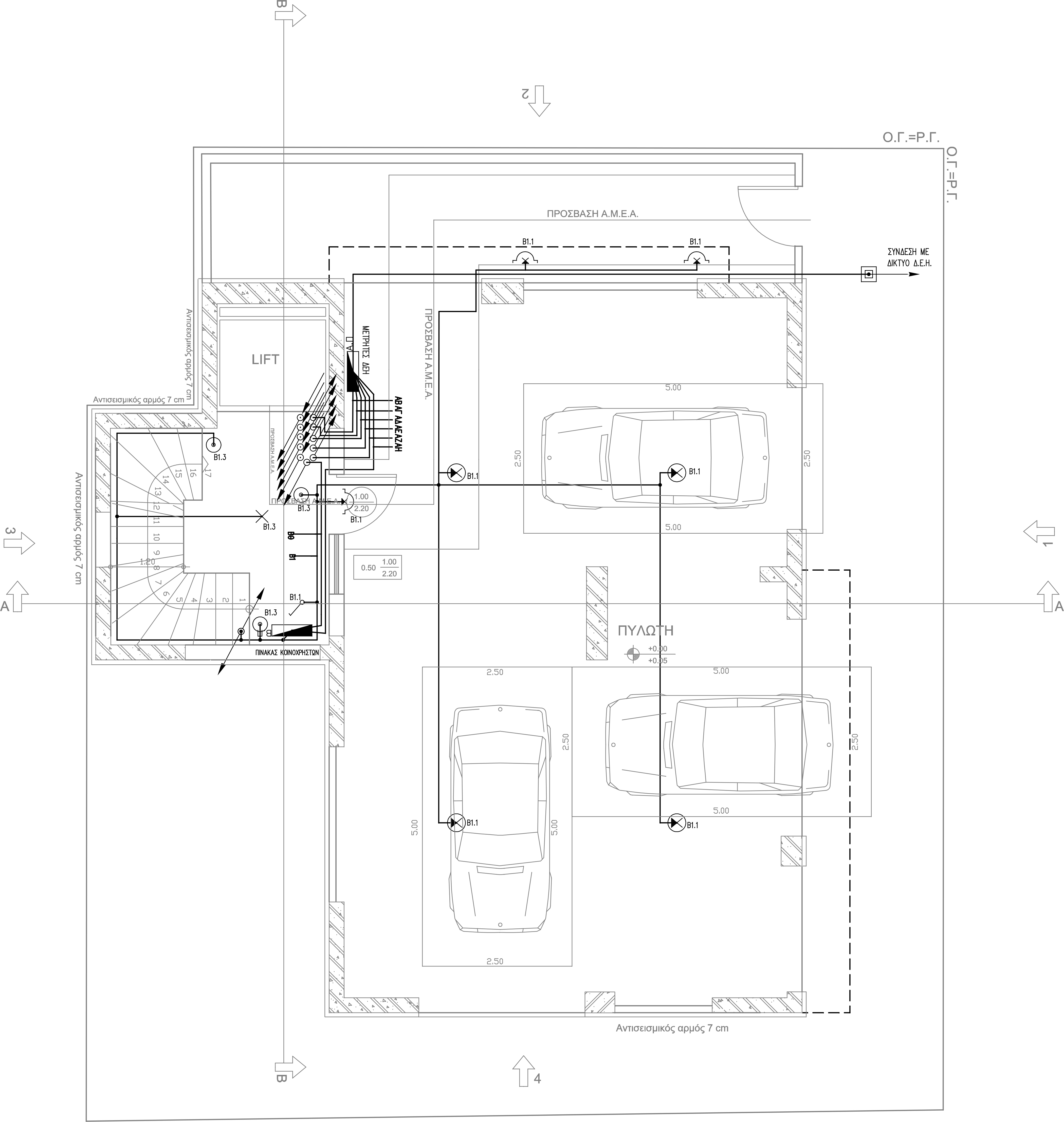
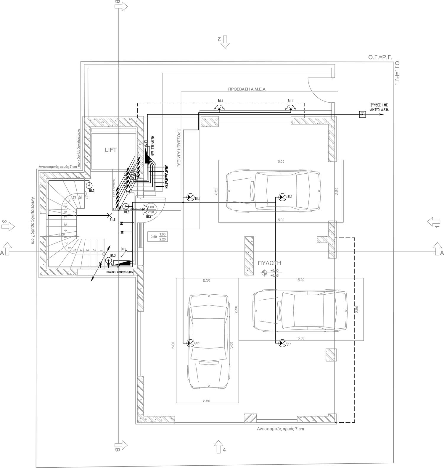
Ηλεκτρολογικό σχέδιο κάτοψης ισογείου πολυκατοικίας από τον ηλεκτρολόγο μηχανικό Νικολαΐδη Παναγιώτη

Ηλεκτρολογικό Σχέδιο Κάτοψης Ισογείου Πολυκατοικίας

Πλήρες Μέγεθος

Ηλεκτρικό διάγραμμα γείωσης πολυκατοικίας από τον ηλεκτρολόγο μηχανικό Νικολαΐδη Παναγιώτη

Ηλεκτρικό Διάγραμμα Γείωσης Πολυκατοικίας

Πλήρες Μέγεθος

Διάγραμμα ασθενών ρευμάτων πολυκατοικίας από τον ηλεκτρολόγο μηχανικό Νικολαΐδη Παναγιώτη

Διάγραμμα Ασθενών Ρευμάτων Πολυκατοικίας

Πλήρες Μέγεθος

Οι απαιτήσεις για τις ηλεκτρικές εγκαταστάσεις βασίζονται στην τυποποίηση ΕΛΟΤ 60364 και αποτελεί το πρότυπο για τη μελέτη, την κατασκευή, τις αλλαγές, τις προσθήκες και τους ελέγχους των Ηλεκτρικών Εγκαταστάσεων.

Σχέδιο ύδρευσης κάτοψης ισογείου πολυκατοικίας από τον ηλεκτρολόγο μηχανικό Νικολαΐδη Παναγιώτη

Σχέδιο Ύδρευσης Κάτοψης Ισογείου Πολυκατοικίας

Πλήρες Μέγεθος

Σχέδιο αποχέτευσης κάτοψης ισογείου πολυκατοικίας από τον ηλεκτρολόγο μηχανικό Νικολαΐδη Παναγιώτη

Σχέδιο Aποχέτευσης Κάτοψης Ισογείου Πολυκατοικίας

Πλήρες Μέγεθος

  • Αναλαμβάνουμε εκπόνηση μελετών και επίβλεψης κατασκευής εσωτερικής εγκατάστασης φυσικού αερίου
  • Προωθούμε την αίτηση στην κατάλληλη εταιρεία διανομής φυσικού αερίου (ήτοι ΕΔΑ ή ΔΕΔΑ)
  • Παρακολουθούμε την επιδότηση προγραμμάτων (π.χ. ΦΕΚ 02/2023-Τεύχος B, 1094 επιδότηση ΕΣΠΑ Φλώρινα)
  • Μελέτη εγκαταστάσεων επαγγελματικών μαγειρείων και λύσεις για την προσαγωγή και απαγωγή αέρα.
  • Μελέτη εγκαταστάσεων λεβητών μεγάλης ισχύος σε λεβητοστάσιο και λύσεις για προσαγωγή αέρα και απαγωγή καυσαερίων.

ΦΕΚ 976Β 2012

Η ισχύς (επί των πλείστων) σε KW λέβητα αερίου για ένα τυπικό - μικρό διαμέρισμα, υπολογίζεται κοντά στα 20 KW ακόμα και αν οι συνολικές ανάγκες θέρμανσης του διαμερίσματος είναι ~5KW.

Πυρασφάλεια καταστήματος από τον ηλεκτρολόγο μηχανικό Νικολαΐδη Παναγιώτη

Πυρασφάλεια Καταστήματος

Πλήρες Μέγεθος

Εκδίδουμε μελέτες για ανελκυστήρες (ανυψωτικών συστημάτων). Υπολογίζουμε την ισχύ του κινητήρα για να καλυφθούν οι απαιτήσεις αυτών.

Στις νεόδμητες πολυκατοικίες, οι απαιτήσεις είναι τοποθέτηση ανελκυστήρα από 8 ατόμων για την πρόβλεψη μετακίνησης ΑΜΕΑ. Οι υδραυλικού τύπου ανελκυστήρες μπορούν να χρησιμοποιηθούν στις πολυκατοικίες που δεν ξεπερνούν το όριο ύψους.

Εκδίδουμε μελέτες για κολυμβητικές δεξαμενές (πισίνες). Υπολογίζουμε την ισχύ της αντλίας για να καλυφθούν οι απαιτήσεις αυτών.

Μελέτη πισίνας Τεχνικό Παναγιώτης Νικολαΐδης